Début 2014, dans le Gers se livrait notre 18 éme construction bois.
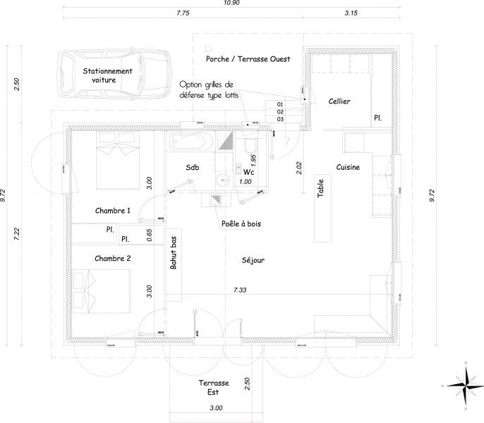
Batie en madriers empilés 88 mm avec doublage par l'extérieur, elle est conforme à la RT 2012 78 m².
Deux chambres avec terrasse. Une grande pièce à vivre avec une charpente type "cathédrale" ajoute au confort une impression de grands espaces propice à la détente.






