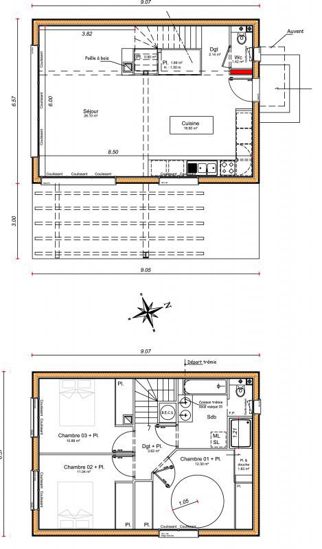
Maison ossature bois en Haute Garonne vendue par Ambiances Bois Concepts montée par la société Hietala
A la recheche d'une maison écologique, performante sur le plan thermique et adaptée à leur budget;
Cette construction réalisée en Ossature bois par la société Hiétala a bénéficié d'un montage hors d'eau hors d'air,
permettant l'achat d'une maison de qualité à un prix très étudié
.L'isolation de la toiture, de la dalle bois et des murs en fibre de bois justifie une performance thermique excellente avec un confort
pour ses occupants très appréicé pendant toutes les saisons.


