Extension bois : création d'une maison confortable et moderne sur un ancien garage

Ancien garage transformé en maison d'habitation en milieu urbain

Maison ossature bois kit finlandais

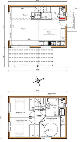
Les plans

plans

1 journée de montage

Maison bois d'architecture moderne sur un terrain partagé avec une construction existante

Avant la construction : un garage en limite de propriété

Après la construction