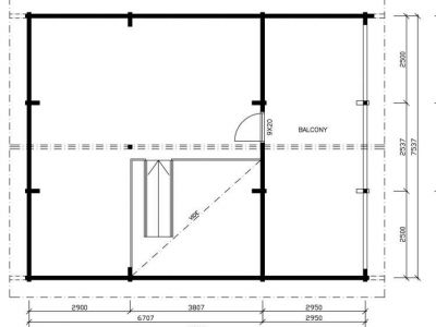
Chalet en bois massif, 113 mm sans doublage. le seul mode de chauffage: un poêle à bois et un chauffe serviette dans la salle de bain.
ESPRIT CHALET SUR ESTADENS Très agréable à vivre
Chalet en bois massif, 113 mm sans doublage. le seul mode de chauffage: un poêle à bois et un chauffe serviette dans la salle de bain.